Museum Tower is a 25-story traditional high-rise condominium building built in 2000 located in Downtown Atlanta
adjacent to the Centennial Olympic Park and the iconic Ferris Wheel and a short walk to the Mercedes-Benz Stadium and State Farm Arena

Museum Tower: Amazing amenities include a rooftop pool, fitness center, club room with kitchen and conference room




Museum Tower: Expansive 5th floor terrace level with outdoor grills, multiple sitting areas, and a dog walking area

Unit 1104: Entrance foyer to unit with beautiful hardwood flooring throughout

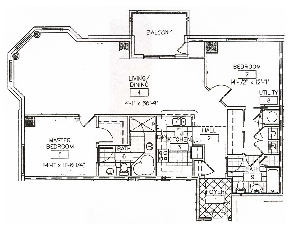
Unit 1104: Corner unit with 1,359 square feet of living space plus balcony with outdoor storage closet

Unit 1104: Open floor plan with kitchen views to dining room and living room

Unit 1104: Kitchen with lots of light stained wood cabinets and granite countertops



Unit 1104: Kitchen with sleek black stainless steel appliances (Replaced 2019)
)


- Unit 1104: Northwest facing corner unit condo with floor-to-ceiling windows and amazing Atlanta views

Unit 1104: Corner unit with 180 degree northwest facing views of the Georgia Aquarium, Mercedes-Benz Stadium,
World of Coca-Cola, Centennial Olympic Park and the Civil Rights Museum
Unit 1104: Large primary bedroom suite with a walk-in custom closet and primary bath with 2 separate vanities and separate jacuzzi tub and shower



Unit 1104: Large secondary bedroom with lots of closet space and an all new updated bathroom (fully renovated 2024)





Unit 1104: Full size washer and dryer; HVAC systems were replaced in 2018


KELLY GILSTRAP HUGHES, REALTOR
COLDWELL BANKER REALTY – BUCKHEAD
Call/Text 678.612.4844






